
Design Build
Erasing the uncertainty in the home renovation process. Everything in one place.
The traditional design-bid-build approach to pursuing a major home construction project means finding an architect and a designer and paying a lot of money to develop plans—without knowing what they might actually cost to build. You then have to hope you’ll find qualified, rival contractors willing to spend time undercutting each other in a bidding war to offer you a cheap enough price so you can afford to complete the job.
Finding responsive professional contractors is much more difficult than you might expect. It usually ends up taking a lot longer and costing a lot more than you’d budgeted. It requires time and effort to manage relationships with multiple partners, and conflict is virtually assured. It’s a stressful experience and—since there’s no single party responsible for your satisfaction from start to finish—your expectations are unlikely to be met.
Our design+build process means you’re working with one company from start to finish.
Are we a good fit?
Through the contact us form, tell us who you are, where you live and what it is about your home that doesn’t feel right. What kind of improvements would you like to consider? When are you thinking you might like to complete a project?
From the information you provide, we can quickly determine if our company is likely to be a good fit for you. If so, we’ll send you an email with an invitation to book a consultation to discuss your project. If not, we’ll do our best to send you some useful information about other companies or partners that might be better suited to help you.
Are we a good fit?

Through the contact us form, tell us who you are, where you live and what it is about your home that doesn’t feel right. What kind of improvements would you like to consider? When are you thinking you might like to complete a project?
From the information you provide, we can quickly determine if our company is likely to be a good fit for you. If so, we’ll send you an email with an invitation to book a consultation to discuss your project. If not, we’ll do our best to send you some useful information about other companies or partners that might be better suited to help you.
In-home Consultation
After an initial phone conversation, one of our experienced, knowledgeable consultants will visit you in your home for 60-90 minutes to hear more about the challenges and issues you and your family are experiencing. We strongly encourage both partners and other interested parties in your family to be present so we can get a clear picture of everyone's ideas and concerns.
We'll do a review of your property and brainstorm together about possible solutions and strategies. We'll share examples of relevant projects we've completed for others in your neighbourhood, and have a candid discussion about budget and timelines. The purpose of this meeting is to allow us both to decide whether we'd like to work together. If either of us feels the fit wouldn't be right, it's okay to say so. If we both feel comfortable at the conclusion of the meeting, we agree to move forward with the next phase of the process, which is to enter into a Conceptual Design services agreement.
In-home Consultation

After an initial phone conversation, one of our experienced, knowledgeable consultants will visit you in your home for 60-90 minutes to hear more about the challenges and issues you and your family are experiencing. We strongly encourage both partners and other interested parties in your family to be present so we can get a clear picture of everyone's ideas and concerns.
We'll do a review of your property and brainstorm together about possible solutions and strategies. We'll share examples of relevant projects we've completed for others in your neighbourhood, and have a candid discussion about budget and timelines. The purpose of this meeting is to allow us both to decide whether we'd like to work together. If either of us feels the fit wouldn't be right, it's okay to say so. If we both feel comfortable at the conclusion of the meeting, we agree to move forward with the next phase of the process, which is to enter into a Conceptual Design services agreement.
Conceptual Design Agreement
For a fixed fee of typically between $8,000 and $15,000, depending on the size of the house and the nature and scale of the project being considered, we provide an in-depth exploration of different design options. We will help you understand what's possible with your property, how much your project will cost, how long it will take and whether there may be any complications obtaining City approvals.
Conceptual Design Agreement

For a fixed fee of typically between $8,000 and $15,000, depending on the size of the house and the nature and scale of the project being considered, we provide an in-depth exploration of different design options. We will help you understand what's possible with your property, how much your project will cost, how long it will take and whether there may be any complications obtaining City approvals.
Existing Plans
A team is dispatched to your home to take detailed measurements and photos of your house. You provide us with a copy of your property survey. If you don't have one, don't worry—we may be able to locate one through www.landsurveyrecords.com or www.protectyourboundaries.ca. If not, we can commission a new one for you.
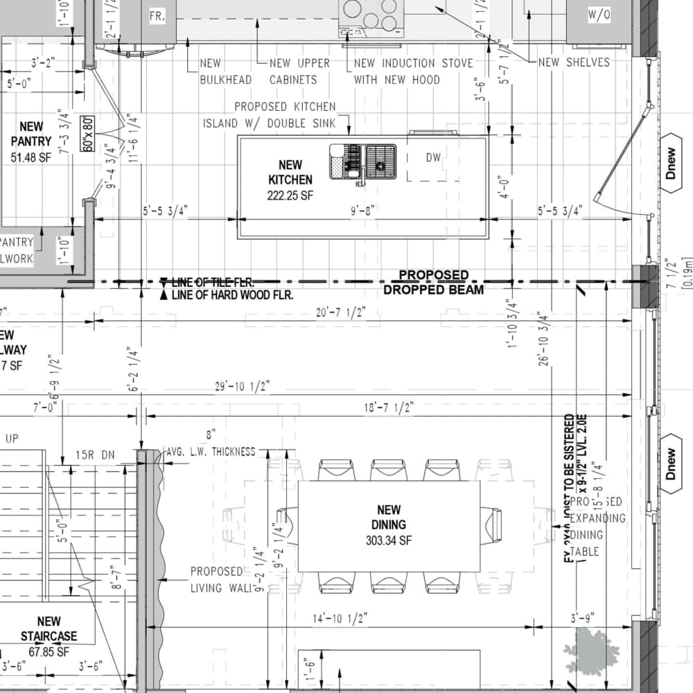
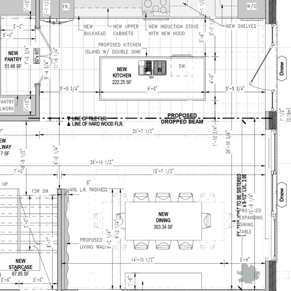
We then prepare existing floor plans and exterior elevation drawings of your house (front, side and rear drawings of the exterior of the house) using state-of-the-art computer-aided design BIM drafting software, Revit. We also prepare a site plan of your property, which combines the critical elements of the property survey with the details we've recorded about your building. We do some preliminary research with the City of Toronto to ascertain the zoning regulations that apply to your property. This information, along with the statistics about your existing house, is entered into a zoning table as part of the drawing package.
The team invests a lot of time and effort in this stage - most of which is behind the scenes - on the belief that it's important to have a solid understanding of what we're working with and to help you better visualize any proposed changes to your home.
Existing Plans

A team is dispatched to your home to take detailed measurements and photos of your house. You provide us with a copy of your property survey. If you don't have one, don't worry—we may be able to locate one through www.landsurveyrecords.com or www.protectyourboundaries.ca. If not, we can commission a new one for you.
We then prepare existing floor plans and exterior elevation drawings of your house (front, side and rear drawings of the exterior of the house) using state-of-the-art computer-aided design BIM drafting software, Revit. We also prepare a site plan of your property, which combines the critical elements of the property survey with the details we've recorded about your building. We do some preliminary research with the City of Toronto to ascertain the zoning regulations that apply to your property. This information, along with the statistics about your existing house, is entered into a zoning table as part of the drawing package.
The team invests a lot of time and effort in this stage - most of which is behind the scenes - on the belief that it's important to have a solid understanding of what we're working with and to help you better visualize any proposed changes to your home.
Design Development
With the existing plans in hand, we have a preliminary design meeting with you. Attending this meeting will be a House Designer and an experienced Renovation Consultant who initially met with you. We review all your issues, concerns and ideas for the house in more detail, your target budget and timelines, and we look at any photos, sketches or product ideas that you may want to share with us that would help the designer steer the initial conceptual plans in the right direction.
We schedule a follow-up meeting, typically a week or two later, to review first draft conceptual plans. Usually we'll bring at least a couple of different plan options to review. We'll take your feedback about the draft plans and follow up with any required variations, revisions or adjustments. For everyone's convenience, we recommend connecting via video conference online. This can be a great way to collaborate on plans together and we can even sometimes make minor plan adjustments on the fly during our video calls.
Design Development

With the existing plans in hand, we have a preliminary design meeting with you. Attending this meeting will be a House Designer and an experienced Renovation Consultant who initially met with you. We review all your issues, concerns and ideas for the house in more detail, your target budget and timelines, and we look at any photos, sketches or product ideas that you may want to share with us that would help the designer steer the initial conceptual plans in the right direction.
We schedule a follow-up meeting, typically a week or two later, to review first draft conceptual plans. Usually we'll bring at least a couple of different plan options to review. We'll take your feedback about the draft plans and follow up with any required variations, revisions or adjustments. For everyone's convenience, we recommend connecting via video conference online. This can be a great way to collaborate on plans together and we can even sometimes make minor plan adjustments on the fly during our video calls.
Budget & Zoning
Once we have conceptual plans you're happy with, we prepare a carefully considered construction budget estimate. If the project as designed is costing more than you're comfortable with, we can make adjustments to the design or the scope of work to align with your budget. We'll repeat the above steps as required until we arrive at a solution that works for you.
If the desired plan includes any additions to the building, we will prepare and submit the plans on your behalf to the City of Toronto zoning department for a zoning review. This is not a building permit application. It is a preliminary step towards a permit, where the City determines whether the proposed construction would violate any zoning or other special regulations. If it does, they'll provide us with the details of the variances that we would need to request from the City's Committee of Adjustment. If there are no zoning violations, they'll issue a document called a zoning certificate, which confirms that the proposed plans are acceptable from a zoning standpoint.
Budget & Zoning

Once we have conceptual plans you're happy with, we prepare a carefully considered construction budget estimate. If the project as designed is costing more than you're comfortable with, we can make adjustments to the design or the scope of work to align with your budget. We'll repeat the above steps as required until we arrive at a solution that works for you.
If the desired plan includes any additions to the building, we will prepare and submit the plans on your behalf to the City of Toronto zoning department for a zoning review. This is not a building permit application. It is a preliminary step towards a permit, where the City determines whether the proposed construction would violate any zoning or other special regulations. If it does, they'll provide us with the details of the variances that we would need to request from the City's Committee of Adjustment. If there are no zoning violations, they'll issue a document called a zoning certificate, which confirms that the proposed plans are acceptable from a zoning standpoint.
Design+Build Agreement
The next step is to enter into a Design Build construction agreement, where we're making a firm commitment to each other to move ahead with the project. Our design team will now prepare materials for the next step in the approvals process. If we've determined that zoning variances will be required, we'll apply on your behalf to the Committee of Adjustment, and then we'll get to work on the detailed technical drawings, including structural engineering, construction assemblies, cross sections through the building, window and door schedules and various other details required to prepare a complete package suitable for building permit application and construction. We prepare electrical and lighting plans and, where applicable, develop heat loss calculations and heating design plans.
Design+Build Agreement

The next step is to enter into a Design Build construction agreement, where we're making a firm commitment to each other to move ahead with the project. Our design team will now prepare materials for the next step in the approvals process. If we've determined that zoning variances will be required, we'll apply on your behalf to the Committee of Adjustment, and then we'll get to work on the detailed technical drawings, including structural engineering, construction assemblies, cross sections through the building, window and door schedules and various other details required to prepare a complete package suitable for building permit application and construction. We prepare electrical and lighting plans and, where applicable, develop heat loss calculations and heating design plans.
Pre-Construction
We assign a Designer who specializes in residential interiors. They prepare a detailed selections list for you on our project management website. It notes all the decisions and actions we need from you in order to complete the project. We provide you with deadlines for each of these items so you know what you have to do, and when. You’ll find lots of additional helpful information here, such as suppliers, contacts and other resources to help you with product selections. This stage can feel a bit intimidating since there can be an awful lot of decisions to make. If you want to handle all the product, fixture and finish selections on your own, you can. If you'd like the assistance of our experienced designers, we're ready to offer you all the help you need to make the right choices on everything, right down to window coverings, furniture and artwork if you wish.
As you finalize selections, an experienced construction project manager is assigned to your project who sets up an official construction schedule. Our project manager will work with you to get prepared for the project. We'll address issues like access, neighbours, parking, fencing, protection of your finishes and landscaping, and identify any items you want salvaged during demolition. Your project manager will make arrangements for a portable toilet if necessary, arrange buried services locates, work through Ministry of Labour requirements to check for hazardous materials like asbestos, and address any required tree protection.
Pre-Construction

We assign a Designer who specializes in residential interiors. They prepare a detailed selections list for you on our project management website. It notes all the decisions and actions we need from you in order to complete the project. We provide you with deadlines for each of these items so you know what you have to do, and when. You’ll find lots of additional helpful information here, such as suppliers, contacts and other resources to help you with product selections. This stage can feel a bit intimidating since there can be an awful lot of decisions to make. If you want to handle all the product, fixture and finish selections on your own, you can. If you'd like the assistance of our experienced designers, we're ready to offer you all the help you need to make the right choices on everything, right down to window coverings, furniture and artwork if you wish.
As you finalize selections, an experienced construction project manager is assigned to your project who sets up an official construction schedule. Our project manager will work with you to get prepared for the project. We'll address issues like access, neighbours, parking, fencing, protection of your finishes and landscaping, and identify any items you want salvaged during demolition. Your project manager will make arrangements for a portable toilet if necessary, arrange buried services locates, work through Ministry of Labour requirements to check for hazardous materials like asbestos, and address any required tree protection.
Construction
The fun really begins now as our team of professional renovators and specialty tradespeople work in an organized, safe, supervised, tidy manner. Our project manager coordinates all the necessary personnel to execute the work, arranges necessary inspections at the required intervals and ensures that the work follows the plans and the schedule. When considering all of the different parties and suppliers, hundreds of people are ultimately coming together to make your project a success, and your project manager is at the centre of coordinating and holdings these parties accountable on your behalf. Your project manager will communicate with you frequently to let you know what's happening and address any questions or concerns. You will also receive monthly cost reports to keep you up to date on any elements of the project that are being provided on an allowance (cost-plus) basis.
Construction

The fun really begins now as our team of professional renovators and specialty tradespeople work in an organized, safe, supervised, tidy manner. Our project manager coordinates all the necessary personnel to execute the work, arranges necessary inspections at the required intervals and ensures that the work follows the plans and the schedule. When considering all of the different parties and suppliers, hundreds of people are ultimately coming together to make your project a success, and your project manager is at the centre of coordinating and holdings these parties accountable on your behalf. Your project manager will communicate with you frequently to let you know what's happening and address any questions or concerns. You will also receive monthly cost reports to keep you up to date on any elements of the project that are being provided on an allowance (cost-plus) basis.
Post-Construction
As we reach the end of construction, we work with you to make any necessary adjustments or deficiency corrections and help you get acclimated to your newly improved home. Sometimes little issues can arise as the house settles, and as humidity and temperature levels change through the first year after construction. We're ready to come back promptly and address these as required.
We stand behind our work with a no-nonsense, complete four-year warranty. Our reputation for prompt, responsive warranty support has been one of the key factors in the success of our company. We don't want you to forget about us, and we promise we won't forget about you after the work is finished. We want to be your design build partner for life.
Post-Construction

As we reach the end of construction, we work with you to make any necessary adjustments or deficiency corrections and help you get acclimated to your newly improved home. Sometimes little issues can arise as the house settles, and as humidity and temperature levels change through the first year after construction. We're ready to come back promptly and address these as required.
We stand behind our work with a no-nonsense, complete four-year warranty. Our reputation for prompt, responsive warranty support has been one of the key factors in the success of our company. We don't want you to forget about us, and we promise we won't forget about you after the work is finished. We want to be your design build partner for life.
Our Process